Apartament • Nowe budownictwo San Pedro del Pinatar

Wróć do wyników wyszukiwania
  • Apartament
  • Od 67 m²
  • 2-3
Od 208.900EUR
UMÓW SIĘ NA ROZMOWĘ
Udogodnienia
  • Rok Budowy: 12/2026
  • Odległość od morza: 100 m
  • Odległość od lotniska : 80 km

Dowiedz się więcej


    Opis

    Nowe apartamenty 100 m od plaży – San Pedro del Pinatar

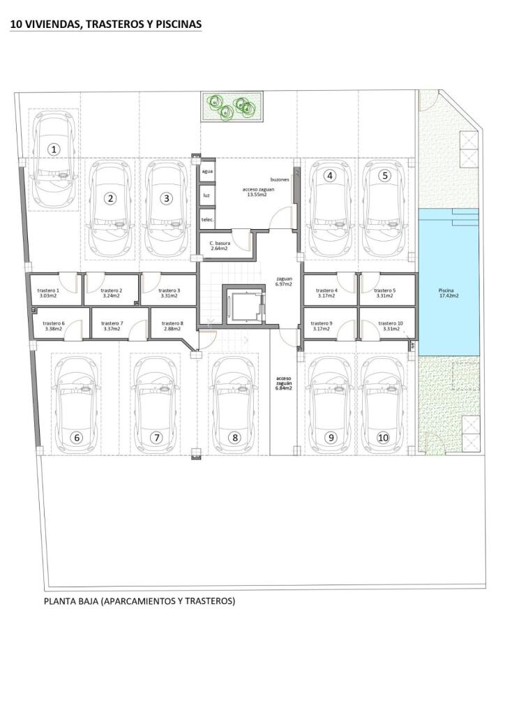
    Kameralna, nowoczesna inwestycja mieszkaniowa położona zaledwie 100 metrów od plaży w San Pedro del Pinatar. Kompleks obejmuje tylko 10 apartamentów, co gwarantuje spokój, prywatność i ekskluzywną atmosferę, a jednocześnie bliskość pełnej infrastruktury miejskiej.

    Apartamenty oferują 2 sypialnie i 2 łazienki, jasną strefę dzienną w układzie open space oraz w pełni wyposażone kuchnie. Wysoki standard obejmuje klimatyzację kanałową, elektryczne rolety oraz nowocześnie wykończone łazienki. Do dyspozycji mieszkańców pozostaje basen wspólny.

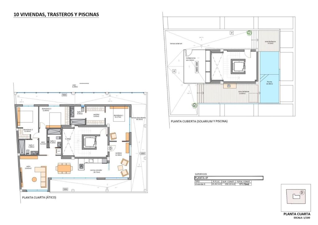
    W inwestycji dostępny jest również penthouse z 3 sypialniami i 3 łazienkami, prywatnym basenem, tarasami oraz dużym solarium na dachu.

    Lokalizacja łączy bliskość plaży, dostęp do restauracji, sklepów i terenów rekreacyjnych oraz bardzo dobry potencjał inwestycyjny – idealna propozycja pod wynajem krótkoterminowy lub second home.

    Odległości:

    • plaża – 100 m

    • port jachtowy San Pedro del Pinatar – 1,5 km

    • centrum handlowe Dos Mares – 2 km

    • pola golfowe – ok. 10 km

    • lotnisko Murcia Corvera – 35 km

    • lotnisko Alicante – 80 km

    Ceny apartamentów od 208 900 €.

    Podobne ogłoszenia

    • Ref: DCB-027

    Los Alcázares , Hiszpania
    • Od 108m²
    • Od 312m²
    • 3
    • 2
    • prywatny

    Od 569.000EUR

    • Ref: AGP-0672

    Torremolinos, Hiszpania
    • Od 95m²
    • 1-3
    • 1-2
    • wspólny

    Od 399.000EUR

    • Ref: AGP-0117

    Marbella, Hiszpania
    • 401m²
    • 1049m²
    • 5
    • 5
    • prywatny

    Cena: 3.695.000EUR